Container sanitar - scoli si gradinite - complet
Containere Sanitare Scoli si Gradinite
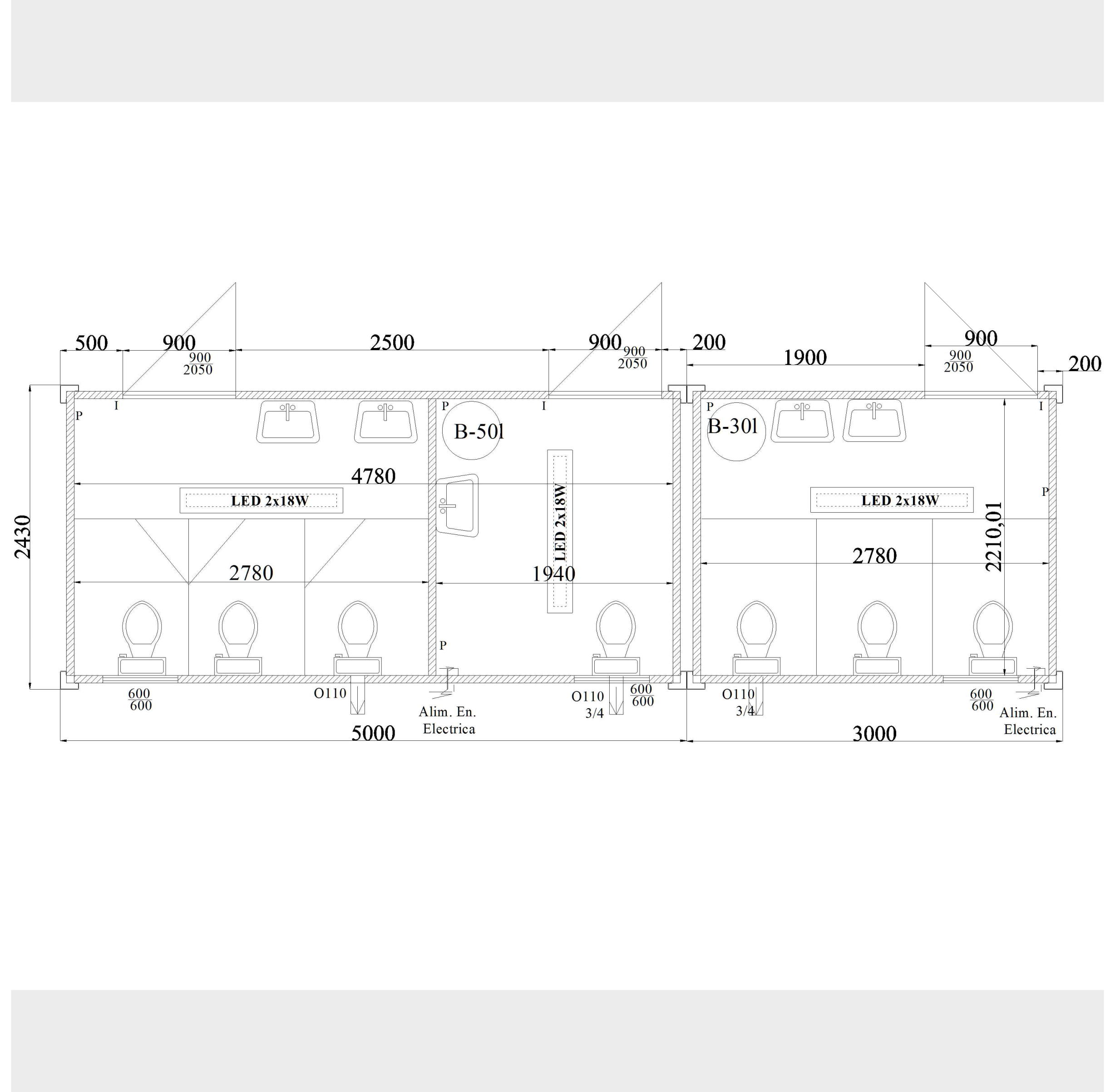
Modelul prezentat este o varianta compacta de container sanitar , asigurand pentru o scoala sau gradinita tot ce are nevoie. Este echipat complet cu obiecte sanitare, boiler electric pentru apa calda, incalzitoare electrice pentru incalzire, vase wc atat standard, cat si vase wc pentru copii de gradinita, mai mici. Are avantajul asigurarii unui mediu curat si igienic, incalzit si care asigura pentru o scoala sau gradinita absolut totul intr-un singur container.
Termoizolatia este asigurata de folosirea de panouri sandwich cu spuma poliuretanica de 60mm grosime, atat la pardoseala cat si la pereti si acoperis, asigurand astfel un inalt grad de protectie termica.
Din punct de vedere al dotarilor uzuale, acestea pot include pisoare pentru copii, vase wc adaptate pentru copii, vase wc standard, lavoare la inaltime mai mica, aparate de climatizare, boiler electric protejat, si alte dotari necesare.
De asemenea, containerele sanitare destinate scolilor si gradinitelor pot fi realizate in diferite compartimentari, avand prevazute atat grupuri sanitare pentru fete, baieti, cadrele didactice sau pentru persoanele cu dizabilitati.
Nu ezitati sa ne contactati sa vedeti ce va putem oferi pentru grupuri sanitare pentru scoli si gradinite.








