Casa din doua containere de locuit
Descriere: Va oferim o varianta de casa din 2 containere de locuit ideala pentru amplasarea in diverse locatii pentru locuit permanent sau temporar, complet echipata si dotata cu: baie completa (dus, wc, lavoar, boiler, si accesorii), living de 15mp, dormitor de 8mp, si bucatarie. Modelul propus este alcatuit din 2 containere de locuit modulare unite intre ele, avand o suprafata totala de 29,16mp.
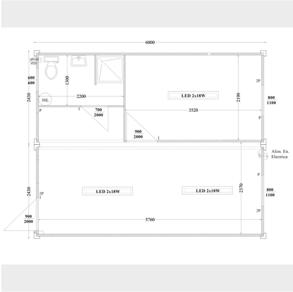
Dimensiune: 6m lungime, 4,86m latime, 2,55m inaltime, suprafata 29,16mp
Dotari standard: Usa metalica 900x2000, fereastra rotobasculata 800x1100 - 2 bucati, fereastra de baie 600x600 rotobasculanta, covor PVC de trafic greu, compartimentare pentru dormitor cu usa interioara metalica sau termopan, compartimentare de baie cu usa interioara metalica sau termopan, baie complet echipata (wc+dus+lavoar+boiler 50l, +accesorii - oglinda, etajera, sapuniera, portprosop etc), instalatie electrica standard (tablou general, priza de conexiune, 3 corpuri de iluminat LED 2x18W, 6 prize standard, 3 prize de radiator, aplice si intrerupatoare), preechipare lavoar bucatarie - incluse in pretul afisat!!!.
Termoizolatie: pardoseala, peretii si acoperisul realizate din panouri sandwich cu spuma poliuretanica de 60mm grosime.
Structura: profile speciale din tabla LBC de minim 3mm grosime, indoite in forma speciala. In numite zone ajunge la grosimi mai mari, de 6-12mm. Structura este prevazuta la partea superioara cu 4 elemente de colt pentru manipularea cu macaraua.
Posibilitate de unire cu alte containere: da, se pot forma ansambluri din mai multe containere, fara pereti despartitori realizate la comanda..
Domenii de folosinta: case din containere, case de vacanta, locuinte permanente sau temporare, case sociale etc.
Transport: se poate asigura suplimentar la cerere cu camion simplu, sau camion cu macara
Amplasare usi si ferestre: in functie de dorinta clientului nu apar modifcari de pret la container
Dotari optionale:
- aparat climatizare tip inverter , sau convector cu termostat;
- ferestre suplimentare cu sau fara jaluzele interioare sau exterioare, ale tipuri si dimensiuni de ferestre
- compartimentari diverse
- baie simpla sau completa (dus, wc, lavoar, accesorii, dus, boiler electric)
- usi suplimentare
- placare pereti cu diferie finisaje gen: lambriuri, gips-carton...
- alte dotari la cererea dumneavoastra
Dotarile optionale se pot adauga cu cost suplimentar.
Pretul nu include TVA!!!







